Fuut 12

3628 CP Kockengen

Woonhuis
Vraagprijs € 749.000, k.k.
4 kamers
3 slaapkamers
1
150 m² woonoppervlakte
237 m² perceel
Zonnepanelen aanwezig
Warm water via CV-ketel
Bouwjaar 1983

Beschrijving

** ENGLISH TEXT BELOW **

RUIME, LUXE EN UITSTEKEND ONDERHOUDEN HOEKWONING MET ZONNIGE TUIN OP HET ZUIDWESTEN, EIGEN PARKEERPLAATS EN 12 ZONNEPANELEN MET ENERGIELABEL A, IN EEN RUSTIGE EN RUIM OPGEZETTE WIJK VAN KOCKENGEN

Deze moderne en hoogwaardig afgewerkte familiewoning combineert ruimte, licht, comfort en privacy op een manier die hier zelden voorkomt. Met een woonoppervlakte van 150 m², een perceel van 237 m² met een zonnige en ruime tuin op het zuidwesten, een eigen parkeerplaats aan de voorzijde en een uitstekende staat van onderhoud, is dit een instapklare familiewoning op een bijzonder fijne locatie.

De woning is in de afgelopen jaren op belangrijke punten gemoderniseerd. Zo zijn de keuken en het toilet in 2011 vernieuwd, is in 2016 een luxe badkamer met een uitbreiding van de dakopbouw gerealiseerd, in 2021 is de dakkapel aan de achterzijde vernieuwd en uitgebreid over de gehele verdieping (én voorzien van rolluiken), is in 2010 een nieuwe Vaillant HR CV-ketel geplaatst en zijn in 2023 maar liefst 12 zonnepanelen aangebracht. De gehele begane grond en de badkamer zijn voorzien van comfortabele vloerverwarming. De woning heeft een Energielabel A.

Omschrijving beganegrond

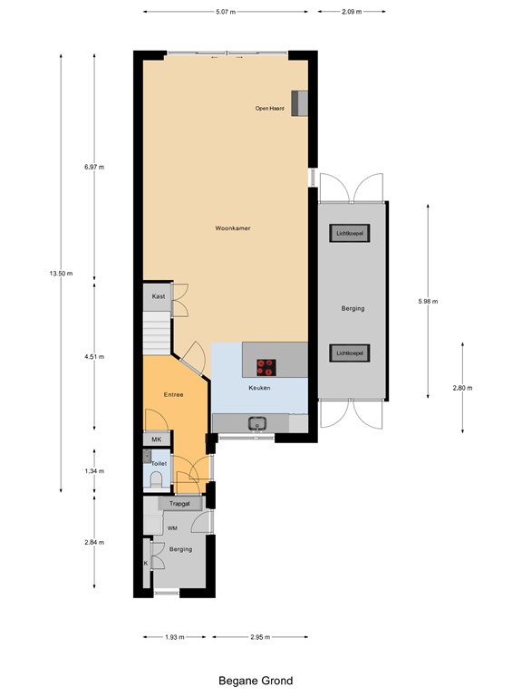
Ruime entree met vernieuwde meterkast en trapopgang. Modern zwevend toilet voorzien van fonteintje en mechanische ventilatie. Aan de voorzijde van de woning bevindt zich de inpandige berging met wasmachine- en drogeraansluiting, vliering voor extra bergruimte en toegang tot de voortuin. Ruime, lichte woonkamer met twee solatubes (voor extra daglicht), gashaard en schuifdeuren naar het terras in de zonnige achtertuin. Aan de voorzijde is de open moderne keuken met kookeiland en diverse inbouwapparatuur waaronder Miele inductiekookplaat, Miele afzuigkap, Siemens combi-magnetron (2025), Miele vaatwasser (2024) en een Quooker (2024).

Omschrijving eerste verdieping

Overloop, deze verdieping heeft twee royale slaapkamers en een luxe badkamer (2016) met vloerverwarming, inloopdouche met regendouche, ligbad, dubbel wastafelmeubel, een zwevend toilet en een design radiator.

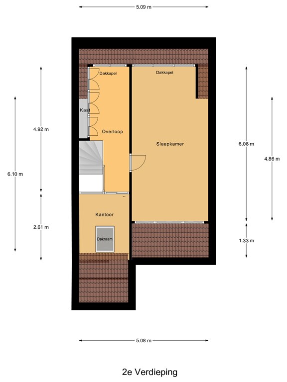
Omschrijving tweede verdieping

De voorzolder is netjes afgewerkt en voorzien van een bergkast met daarin de opstelling voor de CV-ketel, de omvormer voor de zonnepanelen en extra bergruimte. Op de voorzolder bevindt zich ook een separate werkkamer (afsluitbaar d.m.v. een glazen schuifdeur), ideaal als thuiswerkplek of hobbyruimte! Daarnaast is op deze verdieping nóg een royale slaapkamer met dakkapel aan de voor- en achterzijde. Deze slaapkamer heeft aan de voorzijde schitterend uitzicht over de weilanden.

Omschrijving tuinen

De fraai aangelegde achtertuin en zijtuin liggen op het zuidwesten en geeft veel privacy in de zomermaanden. De buitenruimte is voorzien van een buitenkraan (aan voor- en achterzijde) en buitenverlichting. De achtertuin heeft een onderheid terras over de breedte van het huis van 2,50 m diep. Via de aangebouwde ruime berging is er een praktische doorloop van voortuin naar achtertuin. Aan de voorzijde beschikt de woning over een eigen parkeerplaats op gehuurde gemeentegrond (huur €25 per jaar).

Omgeving
Gelegen in een rustige, ruim opgezette woonwijk aan de noordzijde van Kockengen. Een kindvriendelijke omgeving met voldoende parkeergelegenheid, speelruimte en voorzieningen zoals winkels, scholen, sportverenigingen en buitenzwembad op loop- en fietsafstand. De ligging is zeer centraal ten opzichte van de A2 richting Utrecht en Amsterdam en de N401/N212 richting Woerden en Breukelen. Binnen 30 minuten is luchthaven Schiphol te bereiken.

Omschrijving bijzonderheden

• Bouwjaar 1983
• Woonoppervlakte 150 m²
• Perceel 237 m²
• 12 zonnepanelen (2023)
• CV-ketel Vaillant (2010)
• Badkamer met uitbreiding dakopbouw (2016)
• Keuken en toilet vernieuwd (2011)
• Keukenapparatuur vervangen o.a. Miele (2024) en Siemens (2025)
• Vernieuwde dakkapel tweede verdieping (2021)
• Vloerverwarming begane grond en badkamer
• Zonnige tuin op zuidwesten
• Eigen parkeerplaats (op gehuurde grond restgroen van de gemeente)
• Uitstekende staat van onderhoud
• Woning is voorzien van hardhouten kozijnen met HR en HR++ glas
• Energielabel A

Woning bezichtigen?
Neem contact met ons op, wij laten u deze heerlijke familiewoning graag van binnen zien!

De verstrekte informatie en aanmelding van deze woning is met de grootste zorgvuldigheid samengesteld. Door ons wordt echter geen enkele aansprakelijkheid aanvaard voor onvolledigheid, onjuistheid of anderszins, dan wel de gevolgen daarvan. Aan eventuele onjuistheden kunnen geen rechten worden ontleend. Prijswijzigingen en/of drukfouten voorbehouden. Alle vraagprijzen zijn Kosten Koper tenzij anders vermeld.

De woning is ingemeten conform de branchebrede meetinstructies (BBMI), afgeleid van de NEN 2580 normering. De meetinstructie is bedoeld om een meer eenduidige manier van meten toe te passen voor het geven van een indicatie van de gebruiksoppervlakte. De meetinstructie sluit verschillen in meetuitkomsten niet volledig uit, door bijvoorbeeld interpretatieverschillen, afrondingen of beperkingen bij het uitvoeren van de meting.

** ENGLISH VERSION **

SPACIOUS, LUXURIOUS AND EXCELLENTLY MAINTAINED CORNER HOUSE WITH SUNNY SOUTHWEST-FACING GARDEN, PRIVATE PARKING SPACE AND 12 SOLAR PANELS (ENERGY LABEL A), LOCATED IN A QUIET AND SPACIOUS RESIDENTIAL AREA OF KOCKENGEN

This modern and high-quality family home combines space, light, comfort and privacy in a way that is rarely found. With a living area of 150 m², a 237 m² plot featuring a spacious and sunny southwest-facing garden, a private parking space at the front, and an excellent state of maintenance, this is a move-in-ready family home in a particularly pleasant location.

In recent years, the property has been modernized at key points. The kitchen and toilet were renewed in 2011. In 2016, a luxurious bathroom was created together with an extension of the roof structure. In 2021, the rear dormer was renewed and extended across the entire width of the floor and fitted with shutters. A new Vaillant high-efficiency central heating boiler was installed in 2010, and no fewer than 12 solar panels were added in 2023. The entire ground floor and the bathroom benefit from comfortable underfloor heating. The property holds an Energy Label A.

Lay out
Spacious entrance hall with renewed meter cupboard and staircase. Modern floating toilet with washbasin and mechanical ventilation. At the front of the house is the internal storage room with connections for a washing machine and dryer, a loft for additional storage, and access to the front garden. Spacious and bright living room featuring two solar tubes (providing extra daylight), a gas fireplace and sliding doors leading to the terrace in the sunny rear garden. At the front is the open-plan modern kitchen with cooking island and various built-in appliances, including a Miele induction hob, Miele extractor hood, Siemens combi microwave (2025), Miele dishwasher (2024) and a Quooker (2024).

First floor
Landing with two generous bedrooms. Luxurious bathroom (2016) with underfloor heating, walk-in shower with rain shower, bathtub, double washbasin vanity unit, floating toilet and designer radiator.

Second floor
The landing is neatly finished and includes a storage cupboard housing the central heating boiler, the solar panel inverter and additional storage space. There is also a separate study (enclosed with a glass sliding door), ideal as a home office or hobby room. Additionally, this floor offers another spacious bedroom with dormers at both the front and rear. The front-facing side enjoys beautiful views over the surrounding meadows.

Outside
The beautifully landscaped rear and side gardens face southwest and offer plenty of privacy during the summer months. The outdoor area is equipped with an outdoor tap (front and rear) and exterior lighting. The rear garden features a pile-supported terrace spanning the width of the house, 2.50 metres deep. Through the attached spacious storage room, there is convenient access from the front garden to the rear garden. At the front, the property has a private parking space on leased municipal land (lease €25 per year).

Location
Situated in a quiet and spacious residential area on the northern side of Kockengen. A child-friendly environment with ample parking, playgrounds and amenities such as shops, schools, sports clubs and an outdoor swimming pool within walking and cycling distance. The location is very central with respect to the A2 motorway towards Utrecht and Amsterdam and the N401/N212 towards Woerden and Breukelen. Schiphol Airport can be reached within 30 minutes.

Key features
• Year of construction: 1983
• Living area: 150 m²
• Plot size: 237 m²
• 12 solar panels (2023)
• Vaillant central heating boiler (2010)
• Bathroom with roof extension (2016)
• Kitchen and toilet renewed (2011)
• Renewed dormer on second floor (2021)
• Underfloor heating on ground floor and in bathroom
• Sunny southwest-facing garden
• Private parking space (leased land)
• Excellent state of maintenance
• Hardwood window frames with HR and HR++ glazing
• Energy Label A

Interested in viewing this property?
Please contact us. We would be delighted to show you this wonderful family home in person!

The information provided and the listing details have been compiled with the utmost care. However, no liability is accepted for any inaccuracies, omissions or consequences thereof. All stated measurements and surfaces are indicative. No rights can be derived from any inaccuracies. Price changes and/or typographical errors reserved. All asking prices are “buyer’s costs” (Kosten Koper), unless stated otherwise.

The property has been measured in accordance with the industry-wide measurement instruction (BBMI), derived from the NEN 2580 standard. This instruction is intended to apply a more uniform method of measuring to provide an indication of the usable floor area. Differences in measurement outcomes cannot be fully excluded due to interpretation differences, rounding or limitations during the measurement process.


Kaart

Kenmerken

Overdracht

Referentienummer
00003
Vraagprijs
€ 749.000 k.k.
Aanvaarding
In overleg
Laatste wijziging
Maandag 2 Maart 2026

Bouw

Type object
Woonhuis, Eengezinswoning, Hoek
Soort bouw
Nieuwbouw
Bouwperiode
1983
Dakbedekking
Pannen
Type dak
Dwarskap

Oppervlaktes en inhoud

Perceeloppervlakte
237 m²
Woonoppervlakte
150 m²
Inhoud
572 m³

Indeling

Aantal bouwlagen
3
Aantal kamers
4 (waarvan 3 slaapkamers)
Aantal badkamers
1 (en 1 apart toiletten )

Uitrusting

Warm water
CV-ketel
Heeft zonnepanelen
Ja

Kadastrale gegevens

Kadastrale aanduiding
Kockengen E 263

Media

Partners in projectontwikkeling, bouw en vastgoed.

Samenwerken? Neem contact op om de mogelijkheden te bespreken.